报料大小事,身边事,火速加入《百年灌云》微信公众号,可以直接在公众号窗口发送小视频和图片及内容给我们,也可以点击公众号菜单栏目《在线报料》,匿名报料
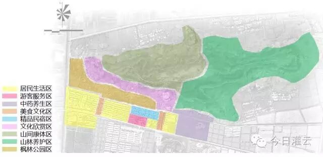
最新伊芦山乡村旅游规划出炉啦!未来五年内,同兴镇将投入重金打造伊芦山风景区及“伊隐”特色小镇,并将目标定位在苏北第一乡村康养乐园。看态势这是要赶超大伊山的节奏啊。 具体规划小编将为您一一解读,不唠叨,直接上干货。林间园路
最后的最后,求
灌云人自己的手机应用软件,知晓灌云大事小情必备利器
为什么要下载灌云掌上手机APP:灌云掌上手机APP就是一个安装在手机里的应用软件,百年灌云安卓版手机APP可以及时了解灌云最新动态,报料身边新闻事件,了解灌云最新消息,发布交易信息,查看别人发的租房信息,生活动态,你也可以上传信息发表文章。大事小情第一时间知晓
同时您自己也可以在现发布交易消息,街头随便拍。快来下载掌上都能玩的灌云APP和100多万灌云人一起HI..
3.电脑下载复制如下地址到浏览器 http://pack-file.app.xiaoyun.com/app/163945/pack/40038/ANDROID/20005/bai_nian_guan_yun_2.0.5-agoyoo
4.手机下载方法常按下面二维码-点击识别图中二维码根据提示下载
<a href="http://jsgy.cn">灌云吧</a>
<百年灌云>更多精彩内容每日推送
